Machan: Korail Community Platform
15 November, 2025
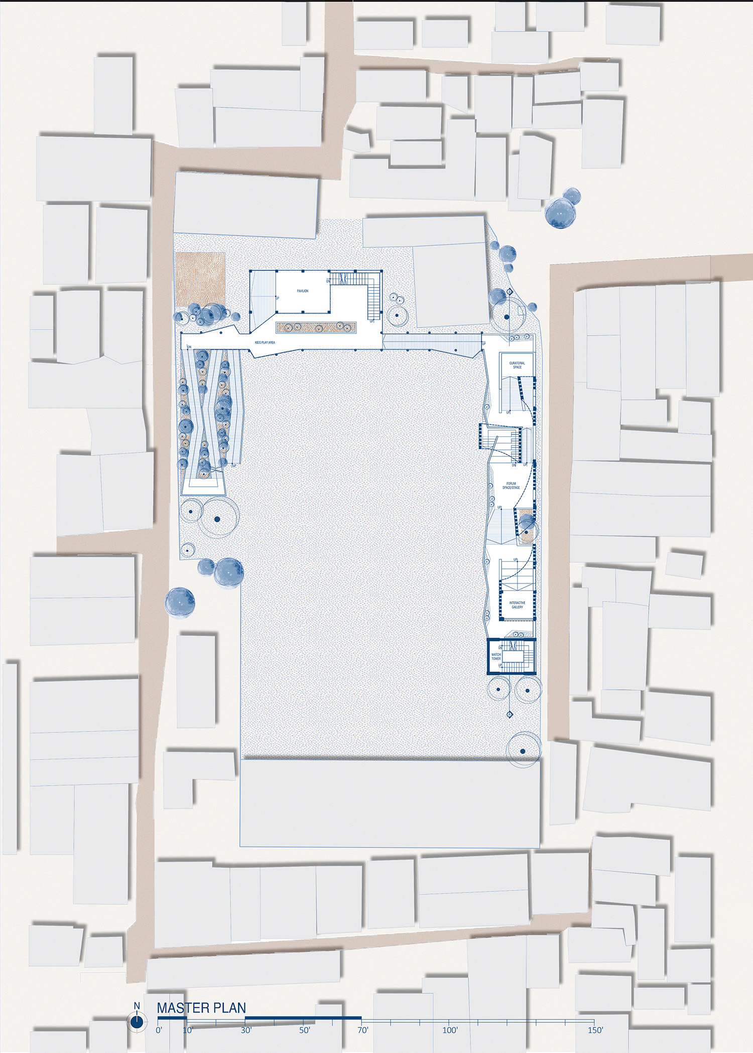
The Korail settlement, home to over 80,000 people, sits beside Dhaka’s affluent neighbourhoods of Banani and Gulshan-Baridhara. While its residents primarily work in waste recycling, street vending or domestic labour for the surrounding city, Korail’s vibrant contribution to Dhaka’s cultural life remains largely unrecognised.
The project Machan, developed by the Dhaka-based collective Paraa, challenges this oversight by placing creativity, learning and care at the centre of civic life. The project is a key part of the wider Korail: City of Culture initiative, which grew from long-term collaboration with residents, youth groups and community leaders to promote art and participation as tools for community building.
The name – Machan, meaning ‘platform’ in Bangla – captures its essence: a structure that supports and connects. It stands at Ershad Maidan, one of Korail’s few open spaces, long used for dumping waste. Paraa worked with local volunteers, students and collaborators including Floating University Berlin to transform the site into a shared stage for expression. Over 60 workshops and residencies shaped the design, bringing together residents and young designers through storytelling, model-making and hands-on construction.





Architecturally, the project reinterprets the traditional Bengali pavilion as a light, permanent structure – robust yet porous, civic yet playful. A simple concrete frame supports two levels designed for openness and flexibility. On the ground floor, two semi-enclosed rooms host workshops, exhibitions and meetings. Large folding doors merge them into one shaded space facing the playground. A wide stair doubles as seating, turning circulation into an amphitheatre for performances and assemblies. The brick-paved ground absorbs heat and is easy to maintain.
The upper level breaks the symmetry, creating varied pockets for use: large steps for sitting, perforated brick enclosures for private activities such as women-led gatherings and open terraces overlooking the field. Light and air flow freely through ventilated brick façades that blur the boundary between inside and outside, turning the building into a mediator between climate and community.
Machan’s restraint is deliberate. There are no enclosed rooms or decorative finishes, only what is essential for durability and comfort. The extended upper plate shades the ground floor, reducing heat gain. Built from locally produced concrete and porous brick, the structure allows natural ventilation throughout the year. Planters and pockets of soil bring greenery, letting residents grow plants and soften the concrete texture. Its simplicity makes it easy to maintain and adaptable for new activities.




